TEL. 099-201-1070
〒891-0175 鹿児島市桜ケ丘6丁目16−13


|
厨房機器のお見積、中古・リサイクル品の詳細、 店舗・厨房設計に関するお問い合わせ、相談など、 内容の委細にかかわらず、お気軽にご連絡下さい。 お問い合わせは、電話・メール・ファックスの いずれかでお問い合わせご連絡いただければ、 こちらから早速にご連絡いたします。 TEL 099-201-1070 FAX 099-201-1071 メールアドレスko-wa-yoshimoto@ina.bbiq.jp |

|
新店舗予定地がお決まりの場合、具体的な提案・ 概算見積りなどの為に、導入予定地に伺って、 現地にて詳細な条件・要望をお訊きしながら 打合せをさせて頂きます。 この際の費用は一切いただきません。 |

![]() |
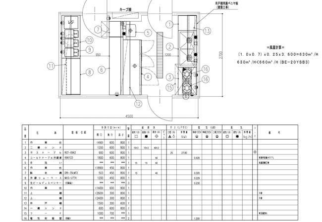
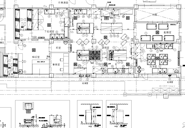
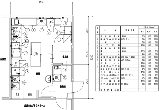
お客様のご要望を伺いながら、仕様・スペース 動線・ご予算に合わせた厨房機器を選定し、 レイアウトを作成。 その後、お客様との打合せを重ねながら 厨房平面図・立体図を作成します。 この時点で図面を元に、 お見積りも作成いたします。 提案図と御見積りで、 この世に一つのお客さまだけの オリジナル厨房をご提案いたします。 |

|
弊社の御提案、見積を御承認いただいた後、 ご契約させて頂きます。 製品を発注・制作完了後、トラックで 現場まで運搬致します。 ※納期については案件毎に異なります。 |

|
図面通りに機器を搬入・据付後、試運転を行い 実地説明等を終えた後、お引渡しになります。 また、納品後の不意の故障や、 トラブルに至る前に行う、 定期点検など幅広く対応し、 部品交換・アフターフォローなども 迅速に対応させていただきます。 |




![]() |
![]() |
〒891-0175
鹿児島市桜ケ丘6丁目16−13
TEL 099-201-1070
FAX 099-201-1071
ko-wa-yoshimoto@ina.bbiq.jp